Home Search
910 Fisher RoadFitchburg, MA 01420




Mortgage Calculator
Monthly Payment (Est.)
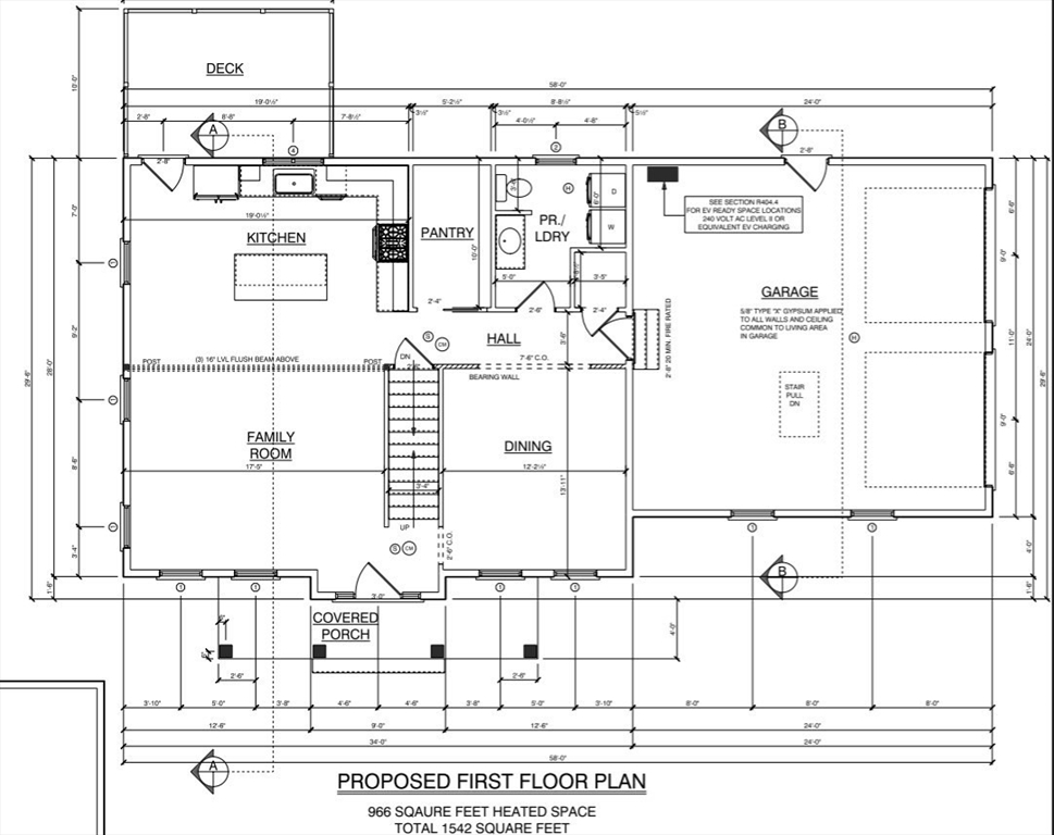
$2,966Your new construction dream home is within reach on this beautiful 1.91-acre private fully cleared field lot. This to be built thoughtfully designed home plan offers generous living spaces, an open-concept kitchen, dining, and living area which is ideal for entertaining. The 2nd floor features 3 bedrooms with a well appointed primary suite. The gently sloping cleared lot with side septic design and city water provides plenty of space for your backyard dreams with a walk out basement. The building area is build ready and can start immediately. Build this plan, bring your own plans, just buy the lot (see land listing) or we can help you find the perfect plan for you and help you build your dream home. Budgets from $600k and up can be accommodated on this lot. Building your dream home doesn't have to be scary when you work with the right team. Interested in just buying the lot? See lot listing for more information or call for details!
| 7 hours ago | Listing updated with changes from the MLS® | |
| 7 hours ago | Listing first seen on site |
The property listing data and information, or the Images, set forth herein were provided to MLS Property Information Network, Inc. from third party sources, including sellers, lessors, landlords, and public records, and were compiled by MLS Property Information Network, Inc. The property listing data and information, and the Images, are for the personal, non-commercial use of consumers having a good faith interest in purchasing, leasing or renting listed properties of the type displayed to them and may not be used for any purpose other than to identify prospective properties which such consumers may have a good faith interest in purchasing, leasing or renting. MLS Property Information Network, Inc. and its subscribers disclaim any and all representations and warranties as to the accuracy of the property listing data and information, or as to the accuracy of any of the Images, set forth herein.
Last checked 2026-02-04 10:29 PM UTC
Did you know? You can invite friends and family to your search. They can join your search, rate and discuss listings with you.