Home Search
240 Larch RowWenham, MA 01984




Mortgage Calculator
Monthly Payment (Est.)
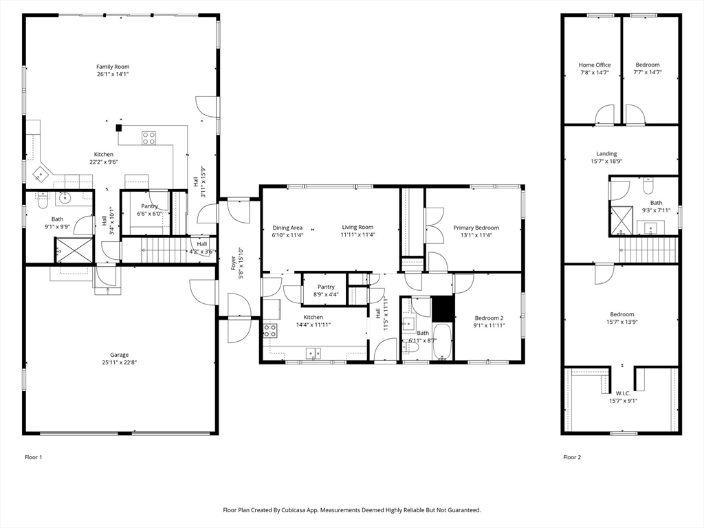
$4,676A rare opportunity for multi-generational living in this thoughtfully designed property that lives like two homes in one. Connected by a welcoming foyer, each living space offers privacy, flexibility, and views of the surrounding natural beauty. One side features an open-concept layout with a spacious living area, large windows overlooking the backyard, and a huge chef’s kitchen, ideal for entertaining. Upstairs you will find 2 bedrooms, gorgeous bath, and an additional flex room. The other side offers inviting living spaces featuring a kitchen, LR, and 2 bedrooms. The tranquil outdoor area with gardens and a peaceful deck. The oversized 2-car garage, accessed through the shared foyer, adds convenience to both living spaces. An oversized basement is ready to finish, offering even more potential. Blending comfort, independence, and connection, this one-of-a-kind property is perfect for today’s flexible lifestyles in a truly serene setting. Open House Sunday 10/26 from 11 to 1!
| 2 weeks ago | Listing updated with changes from the MLS® | |
| 3 weeks ago | Listing first seen on site |
The property listing data and information, or the Images, set forth herein were provided to MLS Property Information Network, Inc. from third party sources, including sellers, lessors, landlords, and public records, and were compiled by MLS Property Information Network, Inc. The property listing data and information, and the Images, are for the personal, non-commercial use of consumers having a good faith interest in purchasing, leasing or renting listed properties of the type displayed to them and may not be used for any purpose other than to identify prospective properties which such consumers may have a good faith interest in purchasing, leasing or renting. MLS Property Information Network, Inc. and its subscribers disclaim any and all representations and warranties as to the accuracy of the property listing data and information, or as to the accuracy of any of the Images, set forth herein.
Last checked 2025-11-09 06:37 PM UTC
Did you know? You can invite friends and family to your search. They can join your search, rate and discuss listings with you.